Штуцера
Призначення та область застосування
Використовуються в основному для підключення різьбових елементів у водопровідних мережах господарсько-питного та технологічного призначення. Мають діапазон приєднувальних розмірів від 1/2" до 1 1/2" включно. Комплект поставки включає 2 фітинги, 2 накидні гайки та 2 прокладки. Фітинги доступні в різній довжині, залежно від правил, технічних умов та ринку призначення.
Основні характеристики
- Матеріал: високоякісна латунь;
- Процес виготовлення: лиття;
- Діапазон розмірів: від 1/2" до 2" включно;
- Європейська сертифікація для використання на трубопроводах питної води СW617N;
- Сертифікація якості ISO 9001-2000.
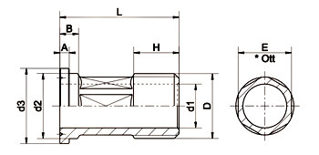
Габаритні розміри виробів наведені в таблиці:
| Арт. | D | D1 | d2 | d3 | A | B | H | L | E | Note | ![]() |
| 5A10001510 | 1/2" | 14 | 20,8 | 24 | 3 | 6 | 14,5 | 38 | 17 | ||
| 5A10359510 | 1/2" | 14 | 20,8 | 28 | 3 | 7 | 14 | 37 | 17 | гайка 7/8 | |
| 5A10005510 | 3/4" | 20 | 26 | 30 | 3,5 | 7 | 17,5 | 48 | 23 | ||
| 5A10308510 | 1" | 24,6 | 33 | 38 | 4 | 9 | 27 | 56 | 30 | ||
| 5A10013510 | 1 1/4" | 31,4 | 41 | 44,5 | 4,5 | 9 | 25,5 | 57 | 37 | ||
| 5A10017510 | 1 1/2" | 38 | 47 | 55 | 5 | 10 | 23 | 67 | *44 | ||
| 5А10020510 | 2" | 49 | 58,5 | 70 | 7 | 13 | 28,5 | 77 | *55 |
| Арт. | D | d | A | B | C | i | F | E | e | ![]() |
| 5B10003510 | 3/4" | 21,5 | 15 | 10 | 12 | 24,5 | 2 | 29 | 31,8 | |
| 5B10328510 | 7/8" | 21,5 | 15 | 10 | 12 | 24,5 | 2 | 34 | 38 | |
| 5B10007510 | 1" | 27 | 17,5 | 11,5 | 14 | 31,5 | 2 | 36 | 40 | |
| 5B10011510 | 1 1/4" | 35 | 21 | 14,5 | 17 | 40 | 2 | 46 | 52 | |
| 5B10015510 | 1 1/2" | 42 | 24 | 16 | 19 | 48 | 2 | 55 | 62 | |
| 5B10018510 | 2" | 49 | 24,5 | 16,5 | 19,5 | 54 | 2 | *67 | 71,5 |

